沧州新华给我一些厂房钢梁的图片
给我一些厂房钢梁的图片共参考5篇资料










展开

















展开
有没有厂房钢梁的安装视频?
能提供一些钢梁的细节图片吗?
给我一些不同材质的厂房钢梁图片
- 钢结构厂房施工实拍:主梁、副梁与吊车梁全解析-
- 产品找工厂-阿里巴巴1688
- >钢梁图片大全-觅知网
- 钢框架结构图纸识读(一)-百家号
- 钢结构三维图集-吊车梁系统、柱脚-知乎
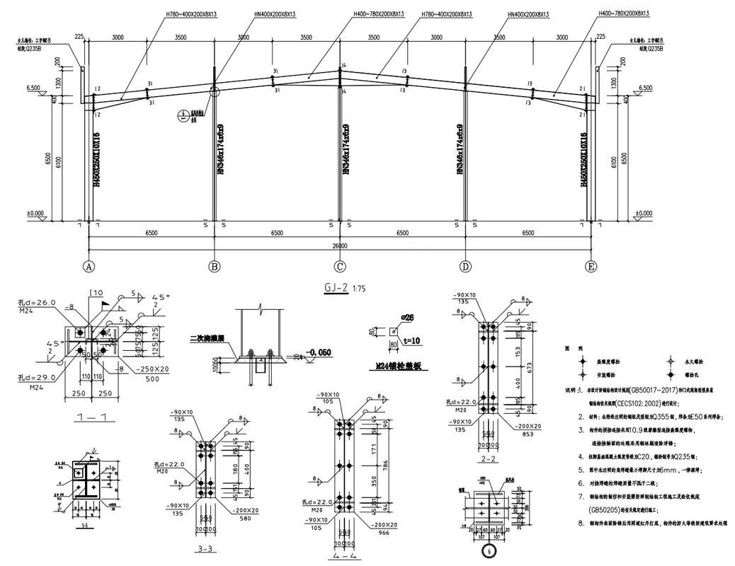
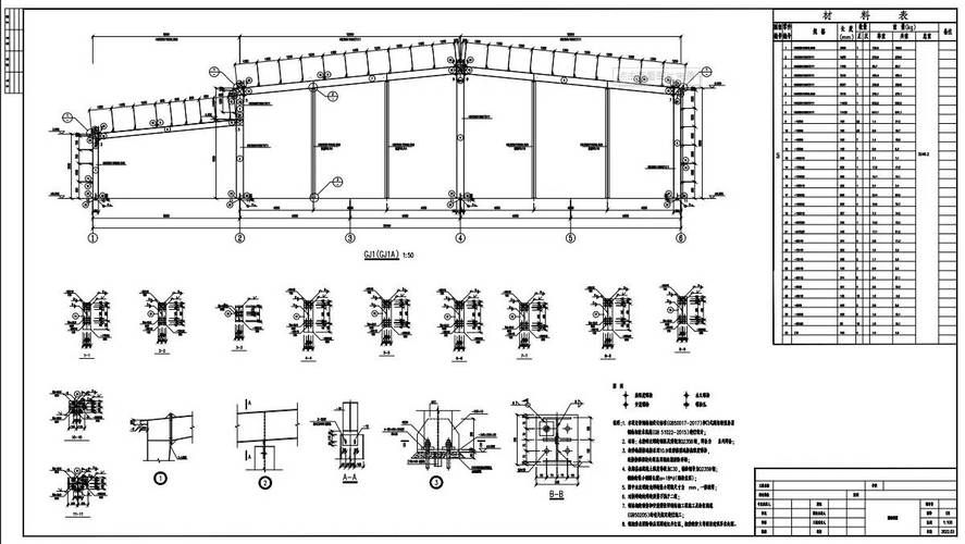
我帮你找了一些厂房钢梁的实拍和示意图,你可以看看这些:
- 厂房钢梁实拍:展示了主梁、副梁和吊车梁的现场安装情况,适合了解实际施工细节。










展开- 钢梁结构示意图:包括工字钢、组合梁等不同截面形式,能帮你理解钢梁的构造和设计。

















展开- 施工过程图:有吊装、焊接等环节的现场照片,方便你了解施工流程。
有没有厂房钢梁的安装视频?
能提供一些钢梁的细节图片吗?
给我一些不同材质的厂房钢梁图片
文章版权声明:除非注明,否则均为原创文章,转载或复制请以超链接形式并注明出处。



还没有评论,来说两句吧...